世乒赛场馆:一座古城与世界的对话

2015-04-17 22:06:23 sipurd 535

有人曾这样描绘如今的苏州:

一座东方的水城,

让世界读了两千五百年;

一个现代工业园,

用十年时间磨砺出超越传统的利剑。

她用古典园林的精巧,

布局出现代经济的版图;

她用双面刺绣的绝活,

实现了东方与西方的对接。

八百年前,东行的马可·波罗遇见姑苏,这个浪漫的意大利人誉之为“东方威尼斯”。富饶的经济与繁荣的市场固然可贵,但威尼斯的迷人,更在于她多面而秀外慧中的文化,古城苏州亦是如此。2015年,苏州牵手第53届世乒赛,是国际A级体育赛事首度花落国内地级市。面对世人这般肯定与期待,这座古城从容而淡定,以不变的张弛与蕴藉,静静准备,等待世界重新发现她不可小觑的绰约风姿。

建筑对话——创新场馆搭建

金鸡湖东北畔,苏州国际博览中心,从天空俯瞰犹如一把承载千年底蕴、古韵今风的折扇,栩栩如生地向世界展开。一年365天,这里几乎天天都热闹非凡。国内外大大小小的行业展会青睐于这座外观优美、交通便利、配套齐全的“城市会客厅”,超百米的无柱大跨径超高空间为百变的功能搭建创造无限可能。


sipurd


百变城市会客厅

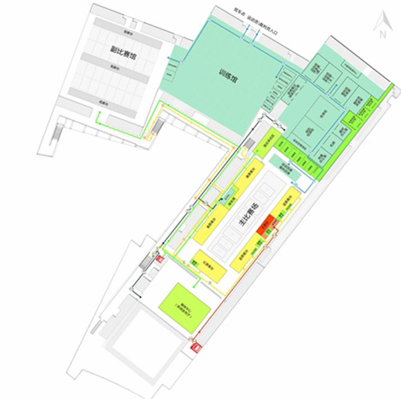
承办高规格的国际赛事,主办城市常规的做法是选择现有的专业比赛场馆或是专门新建一座场馆,而苏州却选择在一座各项建筑标准符合赛事要求的建筑内部临时搭建出一整套高水准的比赛场馆与功能。2014年9月初,当苏州国际博览中心工程建设的老伙伴城市重建第一次接到世乒赛场馆的设计方案时,也不禁为之一振。总面积11万平方米的改造项目包括主比赛场馆、训练馆、副比赛场馆、新闻发布厅、媒体工作区、志愿者及安保人员休息区等一系列场馆及功能区,全部创新借地苏州国际博览中心现有展馆进行内部改造装修,大量租用可回收、可循环使用的材料与设备进行搭建,新节俭风潮下的城市风尚跃然而出。


sipurd


优雅国际竞技场

走在已完工并试运营的苏州世乒赛场馆内,高挑与宽阔的空间格局让人神清气爽,即使在没有启动空调系统的情况下空气也格外清新。从苏州国际博览中心南侧的主入口扶梯而上,就能便捷地进入主比赛场馆。银白色的钢结构之上安装的是围绕着主场的5700余个中国红色观赛座位以及主席台、媒体工作区等,垂直整合的看台设计为观众提供了通畅的出入流线与绝佳的视野,环抱式的内向结构则把众人目光自然汇聚向赛场中心。色泽淡雅的拼装体育地板上铺设着湖蓝色的地毯与暗紫红的国际标准地胶,美观与弹性俱佳,而弧线优美、巴黎紫与土豪金镶拼设计的球台轻而易举地成为全场焦点。赛场中央与关键入口设置的LED屏幕将在赛时清晰呈现第一手信息资讯。


sipurd

sipurd


品质转播楼中楼

对一场全球瞩目的体育赛事来说,主转播媒体现场演播室的重要性不言而喻。坐落于主比赛场馆观众席一侧后方的演播室,乍一看似乎不甚起眼。但由于其钢结构基础须与原楼面隔离,不能与原楼面结构连接,却要满足抗震等级提高一度、防止横向滑移、墙面防火和吸音等要求,同时还要保证中央电视台和东京电视台电视直播中不得产生轻微振动,所以该构筑物事实上已超越普通永久建筑标准,结构体量极大,成了名副其实的楼中楼。在各方携手努力下,一座全面符合现场直播要求的演播小楼平地而起,不久的将来,苏州世乒赛的实时影像就将从这里传向世界。


sipurd


技术对话 ——全能项目管理

要在3个月的时间里完成如此规模场馆的搭建,绝非易事。苏州世乒赛是一个大项目,而其场馆改造工程又是其中一个重要的子项目。城市重建对这个子项目的管理,必须与组委会对世乒赛的管理一样,运筹帷幄,周密可靠。尽管合作的苏州市体育局、苏州市住建局与城市重建均是首次实施此类项目,但娴熟的项目管理能够使看似复杂、浩大的工程成功实现从“0”到“1”的征程。

14个子工作系统分解

再宏伟的项目也是由一个个基本的小单位项目构成,怎样分解决定着是否能找到科学高效完成项目的途径。世乒赛场馆改造工程涉及隔断及钢结构、体育看台系统、体育地板、体育专用灯光系统、低压配电系统、电气照明系统、消防系统、空调与通风系统、信息显示及控制系统、场地扩声系统、计时记分及现场成绩处理系统、升旗控制系统、信息网络系统、综合布线系统和集成控制系统共14个子系统,这些相互关联且密不可分的子系统组成了一个复杂体育赛事系统工程。不同系统的招标、搭建、安装、拆除、恢复原貌等工作经过精细划分,明确了项目内部清晰的管理界面,为改造工程有条不紊地推进打下坚实基础。


sipurd


多方联动进度控制

对工期如此之紧、任务如此之重的项目而言,时间就是生命。在世乒赛场馆改造项目的前期,筹委会、相关方就与城市重建建立起默契的联动,城市重建得以充分发挥项目管理优势,对深化设计、细化相应招标指标提供专业建议,使得项目招标进度严格按照既定计划逐步完成,根本上保证准时开工。

12月1日体育工艺承包商进场,正式拉开了项目建设的序幕;12月中旬弱电智能化单位进场;2015年1月上旬,赛时灯光系统安装开始;1月中旬,地板和看台安装工作开始。在强大的项目管控之下,若干工种在同一片场地内交叉作业而互不干扰,在农历春节2月15日前按计划完成灯光、看台、地板、临时隔断、供电弱电布线五大项工作。节后形象景观及导向标识、看台座椅、地毯、智能化初步调试等工作小组陆续进场,3月25日顺利通过工程预验收,3月28日测试赛如期举行。整个项目建设过程中,全程的沟通、协调、优化与完善使项目进度与竞赛各阶段工作时间节点达成高度一致。直至4月10日竣工验收,城市重建凭借专业的项目管理完成了看似不可能之事。


sipurd

sipurd


各路专家机构保驾护航

这座于非专业赛展览场馆内拔地而起的世乒赛场馆,背后支撑她的不仅仅是大胆的创新,更有科学的求证。项目拥有优秀的设计方案,但因场馆改造的特殊性,城市重建一丝不苟地组织对施工图设计的深化,特别是对照国际博览中心的原建设资料逐一排查改造重点与难点。

原展馆地面及桁架的承重结构安全问题和观众看台本身的安全性问题是一大关注重点,施工图深化设计不但针对桁架吊点承载、看台座椅安全、原楼面承重等影响做了详细的受力计算分析,还将这些数据提交给国际博览中心原设计单位——苏州设计院进行复核。为确保临时搭建的观众看台安全稳定,中体设计院委托苏州科技学院土木工程学院进行三维有限元的结构计算分析并进行专家论证。3月,城市重建配合专业检测机构实施了五级载荷、五级卸载看台堆载试验,现场验证了理论计算结果,看台结构顺利获得苏州市房屋安全鉴定管理处出具的结构安全鉴定意见书与相关部门的专项验收。

而针对改造涉及的另一关键问题——消防管理,项目委托了省内唯一具备消防性能化分析的中国矿业大学消防工程研究所,对于场馆改造进行火灾烟气流动及安全疏散分析技术研究,并出具了消防性能化报告书,以此作为场馆消防改造设计的依据;在场馆改造期间,多次邀请消防专家亲临现场指导;完工后邀请苏州市公安消防支队查阅资料并踏勘原有场馆和改造施工的实体情况。最终,这座3个月打造出的场馆已符合举办大型赛事活动所具备的应有消防要求。


sipurd


理念对话——重释发展指标

观念在更新,理念在转变。如今,“增长”不再是衡量一地、一城发展水平的唯一指标。2012年在德国多特蒙德举行的国际乒联代表大会上传出喜讯,中国苏州成为2015年第53届世界乒乓球锦标赛的举办城市,苏州成为继北京、天津、上海、广州之后,中国第五座举办世乒赛的城市。世乒赛时隔10年后再次回到中国举办,首度选择地级市举办该级赛事,传递出了新的信号。文化名城苏州未负重望,秉承“绿色、节能、环保、勤谨节约办赛”的宗旨,向世人揭示一条新的办赛路径。

用100天时间,租借安装可循环利用的钢结构、地板、LED屏幕等,临时改造出全套符合高水准比赛功能要求的赛场架构,然后在赛后6天内立即拆除完成恢复原貌,严格遵守世乒赛筹委会明确的“安全、高质、按期、节俭、规范”工作目标。这一切不简单,却绿色、节能、环保,不仅完美解决了国内许多场馆在赛事结束后运营困难的问题,更调用了现成场馆的天然配套之优,为同类项目实践出一个范本,凸显苏州精于管理、沉稳务实的“软实力”。

2015年世乒赛的脚步渐渐临近,苏州世乒赛场馆已迎来了乒乓国家队的进驻封闭集训。硬软件配套就绪,持续的调试优化正在进行,苏州做好了迎接世界宾朋的准备。透过世乒赛,城市重建以项目管理获得了一次与国际性项目“对话”的珍贵机会,而苏州更是从此进一步开启了与世界在体育、经济、文化、理念、发展等全方位的对话窗口,双面绣般精巧的对接,必将再续辉煌。


苏州工业园区城市重建有限公司

地址:苏州工业园区扬富路19号南岸新地7幢18楼

电话:0512-66606999

传真:0512-66606900